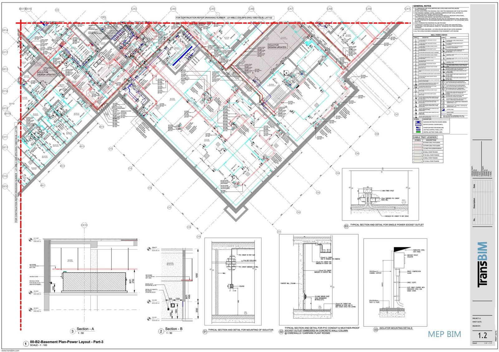
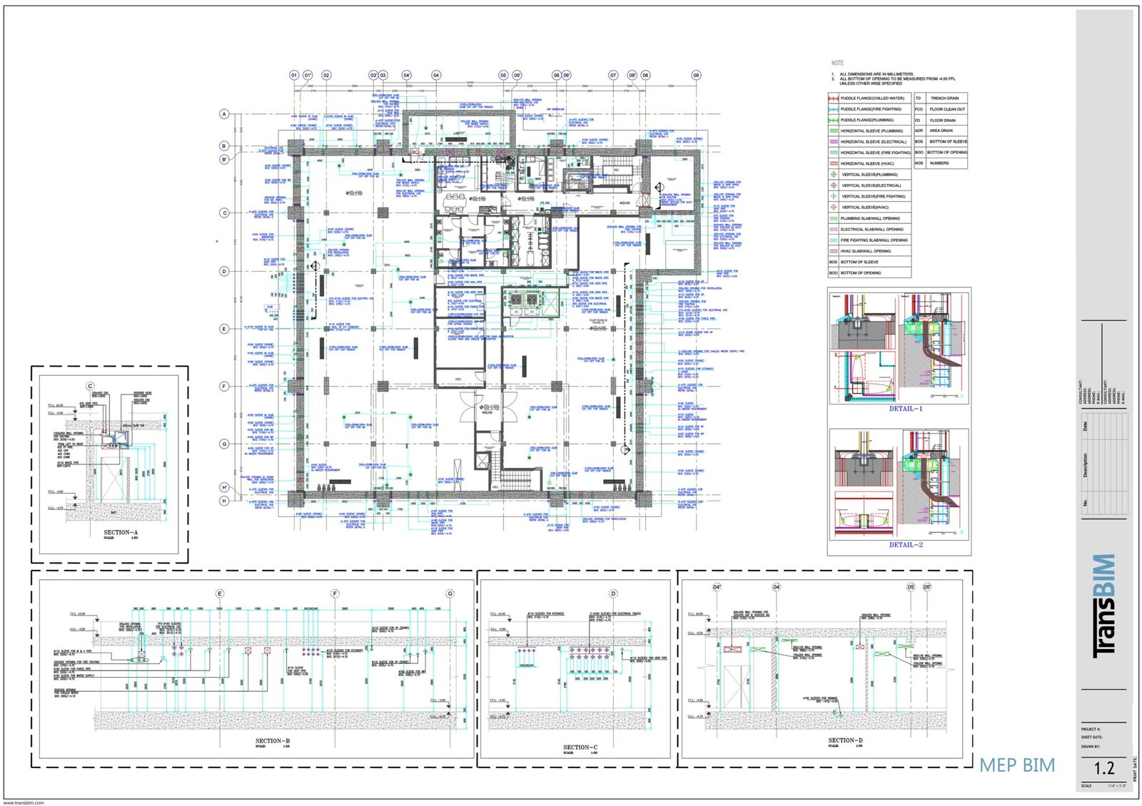
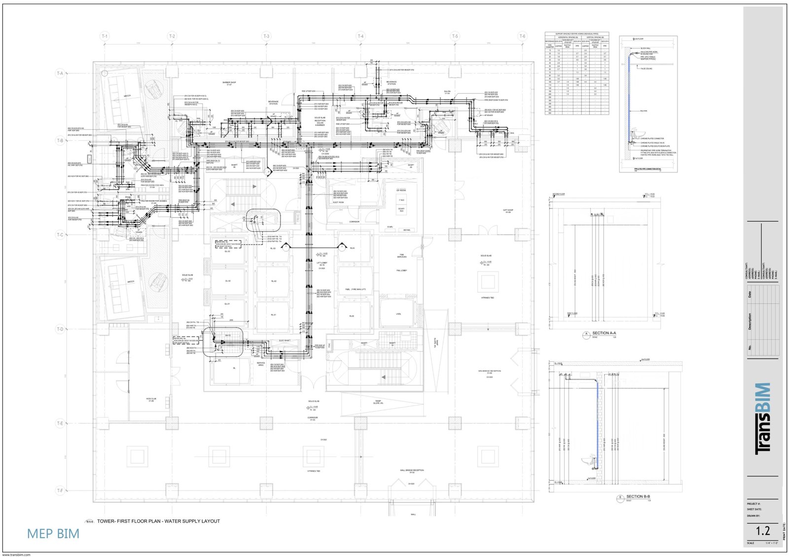
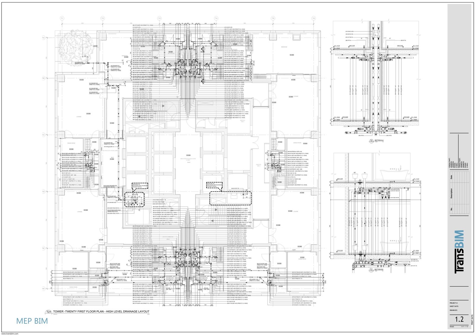
MEP BIM
BIM MEP services for residential, commercial, hospital & infra-structural projects. We impact BIM & CAD solutions starting from schematic design drawings to As-built drawings for your MEP contractors compliant with building codes and standards
SERVICES
- MEPF BIM modeling (LOD 100 To LOD500)
- BIM coordination
- Parametric family creation
- Facility management (COBie) Coordinated shop drawings & As-built drawings
